No Caption No Caption No Caption No Caption No Caption No Caption No Caption No Caption No Caption No Caption No Caption No Caption No Caption No Caption No Caption No Caption No Caption No Caption No Caption No Caption No Caption No Caption No Caption No Caption No Caption No Caption No Caption No Caption No Caption No Caption No Caption No Caption No Caption No Caption No Caption No Caption No Caption No Caption No Caption No Caption

Earth-Sheltered Home and Shop on 15 Acres

351 Hurricane Creek Rd, Linden, Tennessee, 37096-6454

Photos

* PENDING

$295,000

MLS: 41053-255701

15.4 Acres

1,500 SqFt

2 beds

1.0 baths

What You Should Know

  • 15 Acres

  • Renovated

  • Perry Co, TN

  • Waterfall

  • Large Kitchen

  • New Appliances

  • Water Access

  • Basement

Why You'll Love It

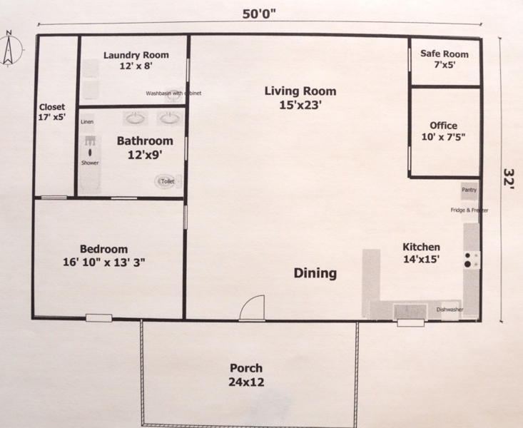
Unique and very thoughtfully designed Earth-Sheltered Home and Shop on 15 Acres with a secret waterfall!! Home has 1500 sq ft of living space. Includes one large bedroom with large walk-in closet, oversized bathroom with walk-in shower, double sinks, and built in linen cabinet. Large open kitchen with built in pantry, dining area and living room. There is also a large laundry room, safe room, and an office that has a closet and can be used as a small bedroom. The home has a heat pump for AC and heat (2022), gas oven/stove (2022), gas back up heater, and new LVP flooring (2025). This property includes a 30X40 shop (2022) with power, full RV hook-ups (50 amp), and working well for grass and garden watering.

Where You'll Find It

  • Street Address: 351 Hurricane Creek Rd
  • City: Linden
  • State: Tennessee
  • County: Perry

Kathryn Dean

Affiliate Broker
See Website